
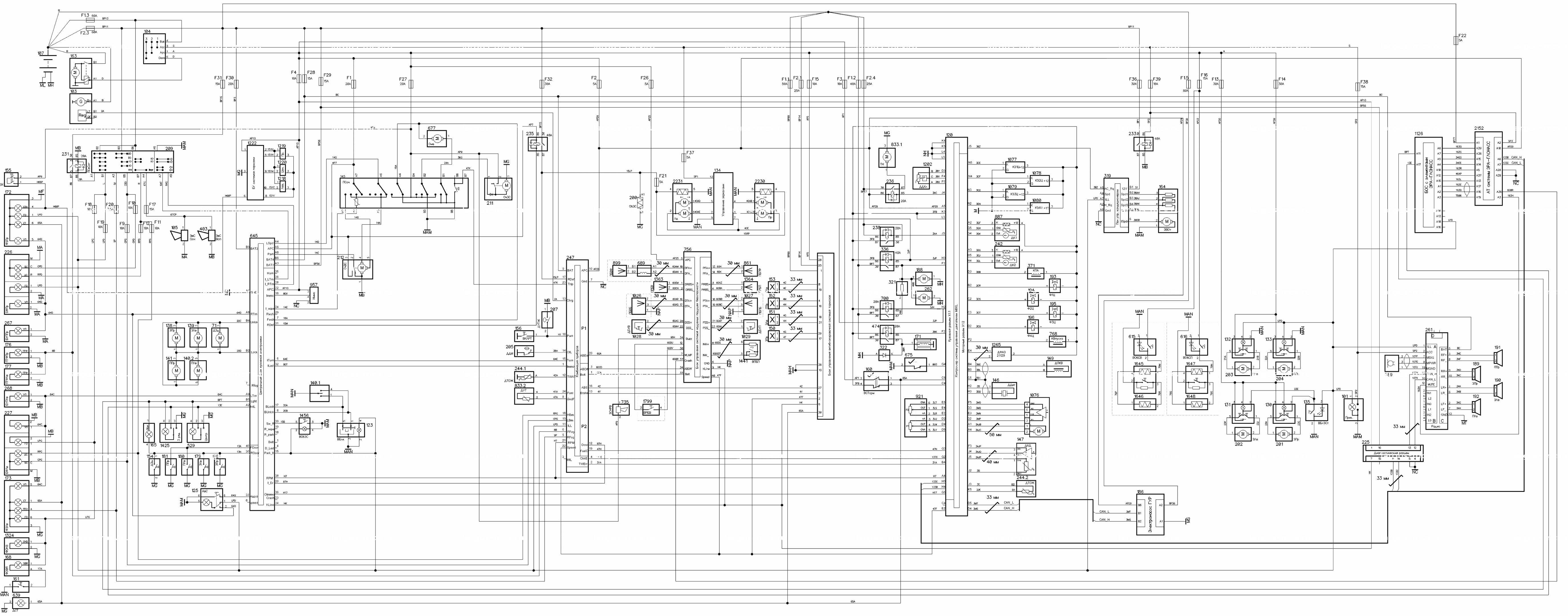
Адкрыць вялікую карцінку ў новай укладцы »
Вырабы электраабсталявання, якія выкарыстоўваюцца ў схеме
| Паз. | Найменне |
| 12 | — |
| 7 | Замак дзвярэй задка з электрапрывадам |
| 101 | Прыпальвальнік |
| 103 | Генератар |
| 104 | Выключальнік запальвання |
| 105 | Асноўны гукавы сігнал |
| 107 | Акумулятарная батарэя |
| 118 | Блок кіравання антыблакіровачнай сістэмай тармазоў |
| 120 | Кантролер сістэмы кіравання рухавіком |
| 123 | Выключальнік цэнтральнага блакавання замкаў дзвярэй |
| 125 | Выключальнік аварыйнай сігналізацыі |
| 128 | — |
| 130 | Перамыкач шклапад'ёмніка задняй правай дзверы |
| 131 | Перамыкач шклапад'ёмніка задняй левай дзверы |
| 132 | Перамыкач шклапад'ёмніка пярэдняй левай дзверы |
| 133 | Перамыкач шклапад'ёмніка пярэдняй правай дзверы |
| 134 | Перамыкач кіравання вонкавымі люстэркамі |
| 135 | Выключальнік блакавання шклапад'ёмнікаў задніх дзвярэй |
| 138 | Мотарэдуктар замка задняй правай дзверы |
| 139 | Мотарэдуктар замка задняй левай дзверы |
| 140 | Мотарэдуктар замка пярэдніх левых дзвярэй |
| 141 | Мотарэдуктар замка пярэдняй правай дзверы |
| 142 | — |
| 145 | Перамыкач шклоачышчальнікаў |
| 146 | Датчык дэтанацыі |
| 147 | Датчык абсалютнага ціску і тэмпературы |
| 149 | Датчык становішча каленчатага вала |
| 150 | Датчык хуткасці кручэння задняга правага кола |
| 151 | Датчык хуткасці кручэння задняга левага кола |
| 152 | Датчык хуткасці кручэння пярэдняга правага кола |
| 153 | Датчык хуткасці кручэння пярэдняга левага кола |
| 154 | Выключальнік стану дзвярэй задка |
| 155 | Выключальнік святла задняга ходу |
| 156 | Выключальнік кантрольнай лямпы ручнога тормазу |
| 160 | Выключальнік сігналу тармажэння |
| 161 | Выключальнік асвятлення рэчавай скрыні |
| 163 | Стартар |
| 164 | Электровентылятар ацяпляльніка |
| 165 | Плафон асвятлення багажніка |
| 166 | — |
| 167 | — |
| 168 | Плафон асвятлення рэчавай скрыні |
| 171 | Муфта кампрэсара кандыцыянера |
| 172 | Ліхтар задні правы |
| 173 | Ліхтар задні левы |
| 176 | Фара супрацьтуманная правая |
| 177 | Фара супрацьтуманная левая |
| 178 | Выключальнік стану задняй правай дзверы |
| 179 | Выключальнік стану задняй левай дзверы |
| 180 | Выключальнік стану пярэдніх левых дзвярэй |
| 181 | Выключальнік стану пярэдняй правай дзверы |
| 184 | — |
| 185 | — |
| 186 | Кантролер электрапомпы гідраўзмацняльніка руля |
| 188 | Электровентылятар астуджэння радыятара |
| 189 | Гучнагаварыцель задні правы |
| 190 | Гучнагаварыцель задні левы |
| 191 | Гучнагаварыцель пярэдні правы |
| 192 | Громкамоўнік пярэдні левы |
| 193 | Фарсунка 1 цыліндру |
| 194 | Фарсунка 2 цыліндру |
| 195 | Фарсунка 3 цыліндру |
| 196 | Фарсунка 4 цыліндру |
| 199 | — |
| 200 | Элемент абагравання задняга шкла |
| 201 | Электрашклапад'ёмнік задняй правай дзверы |
| 202 | Электрашклапад'ёмнік задняй левай дзверы |
| 203 | Электрашклапад'ёмнік пярэдніх левых дзвярэй |
| 204 | Элект расцеклапад'ёмнік пярэдняй правай дзверы |
| 205 | Датчык ціску алею |
| 207 | Датчык ўзроўню тармазной вадкасці |
| 209 | Пераключальнік светлавой сігналізацыі |
| 211 | Мотарэдуктар ачышчальніка задняга шкла |
| 212 | Мотарэдуктар ачышчальніка ветравога шкла |
| 213 | — |
| 219 | — |
| 221 | — |
| 222 | — |
| 224 | — |
| 225 | Дыягнастычны раз'ём |
| 226 | Блок-фара правая |
| 227 | Блок-фара левая |
| 229 | — |
| 231 | Рэле супрацьтуманных фар |
| 233 | Рэле электровентилятора ацяпляльніка Найменне |
| 234 | — |
| 235 | Рэле абагравання задняга шкла і вонкавых люстэркаў |
| 236 | Рэле паліўнай помпы |
| 238 | Галоўнае рэле ЭСУД |
| 239 | — |
| 240 | — |
| 242 | Датчык кіслароду 2 (ніжні) |
| 244 | Датчык тэмпературы астуджальнай вадкасці |
| 245 | — |
| 247 | Камбінацыя прыбораў |
| 250 | — |
| 255 | — |
| 256 | — |
| 257 | — |
| 260 | — |
| 261 | Радыёпрымач |
| 262 | Электровентылятар астуджэння радыятара |
| 267 | Паказальнік павароту бакавы правы |
| 268 | Паказальнік павароту бакавы левы |
| 271 | — |
| 272 | — |
| 299 | — |
| 319 | Панэль кіравання сістэмы кандыцыянавання паветра |
| 321 | Супраціў дадатковае электровентилятора радыятара |
| 322 | Дыёд сістэмы кандыцыянавання |
| 336 | Рэле электровентилятора радыятара |
| 371 | Клапан прадзьмуху адсорбера |
| 403 | Гукавы сігнал дапаможны |
| 414 | — |
| 438 | — |
| 474 | Рэле муфты кампрэсара кандыцыянера |
| 529 | Плафон асвятлення салона цэнтральны |
| 597 | — |
| 615 | Выключальнік абагравання сядзенні кіроўцы |
| 616 | Выключальнік абагравання сядзенні пярэдняга пасажыра |
| 639 | Дадатковы сігнал тармажэння |
| 645 | Цэнтральны блок кузаўной электронікі |
| 649 | — |
| 675 | Выключальнік сігналу становішча педалі счаплення |
| 677 | Электрарухавік абмывальніка |
| 680 | — |
| 681 | — |
| 682 | — |
| 683 | — |
| 689 | Прылада якое верціцца |
| 700 | Рэле малой хуткасці электровентиляторов охл. радыятара |
| 735 | Гукавы сігналізатар непрышпілены рамяня кіроўцы |
| 746 | — |
| 753 | — |
| 756 | Блок кіравання сістэмай надзіманых падушак бяспекі |
| 768 | Клапан кіравання даўжынёй впускной трубы |
| 784 | — |
| 789 | Мікрафон |
| 833 | Паліўная помпа з датчыкам узроўня паліва |
| 861 | Падушка бяспекі пасажыра франтальная |
| 887 | Датчык кіслароду 1 (верхні) |
| 899 | Падушка бяспекі вадзіцеля франтальная |
| 921 | Педаль акселератара электронная |
| 957 | Антэна імабілізатара |
| 983 | — |
| 997 | — |
| 1001 | — |
| 1002 | — |
| 1003 | — |
| 1016 | — |
| 1026 | Падушка бяспекі вадзіцеля бакавая |
| 1027 | Падушка бяспекі пасажыра бакавая |
| 1028 | Датчык бакавога ўдару вадзіцеля |
| 1029 | Датчык бакавога ўдару пасажыра |
| 1032 | — |
| 1047 | — |
| 1066 | — |
| 1067 | — |
| 1068 | — |
| 1071 | — |
| 1076 | Модуль дросельнай засланкі з электрапрывадам |
| 1077 | Шпулька запальвання 1 цыліндру |
| 1078 | Шпулька запальвання 2 цыліндру |
| 1079 | Шпулька запальвання 3 цыліндру |
| 1080 | Шпулька запальвання 4 цыліндру |
| 1105 | — |
| 1113 | — |
| 1126 | Блок асвяшчэння салона |
| 1186 | — |
| 1196 | — |
| 1202 | Датчык ціску холадагенту |
| 1212 | — |
| 1213 | — |
| 1214 | — |
| 1215 | — |
| 1218 | Датчык сістэмы паркоўкі левы |
| 1219 | Датчык сістэмы паркоўкі правы |
| 1220 | Датчык сістэмы паркоўкі цэнтральны |
| 1222 | Блок кіравання сістэмай паркоўкі |
| 1265 | Датчык фаз |
| 1324 | Ліхтар асвятлення нумарнога знака (цэнтр.) |
| 1363 | Прадцягвальнік рамяня бяспекі вадзіцеля |
| 1364 | Прадцягвальнік рамяня бяспекі пасажыра |
| 1425 | Плафон асвятлення салона Зго шэрагу |
| 1441 | Выключальнік адключэння падушкі бяспекі пасажыра |
| 1456 | Выключальнік абагравання задняга шкла |
| 1460 | — |
| 1475 | — |
| 1542 | — |
| 1645 | Элемент абагравання падушкі сядзення кіроўцы |
| 1646 | Элемент абагравання спінкі сядзення кіроўцы |
| 1647 | Элемент абагравання падушкі сядзення пасажыра |
| 1648 | Элемент абагравання спінкі сядзення пасажыра |
| 1799 | Выключальнік замка рамяня бяспекі кіроўцы |
| 1840 | — |
| 1916 | — |
| 2152 | Аўтамабільны тэрмінал сістэмы ЭРА-ГЛОНАСС |
| 2230 | Люстэрка вонкавае правае |
| 2231 | Люстэрка вонкавае левае |
Пералік засцерагальнікаў
| Паз. | Найменне |
| Блок засцерагальнікаў і рэле салона: | |
| F1 | Засцерагальнік 20А |
| F2 | Засцерагальнік 5А |
| F3 | Засцерагальнік 10А |
| F4 | Засцерагальнік 10А |
| F5 | — |
| F6 | — |
| F7 | — |
| F8 | — |
| F9 | Засцерагальнік 10А |
| F10 | Засцерагальнік 10А |
| F11 | Засцерагальнік 10А |
| F12 | Засцерагальнік 10А |
| F13 | Засцерагальнік 30А |
| F14 | Засцерагальнік 30А |
| F15 | Засцерагальнік 10А |
| F16 | Засцерагальнік 15А |
| F17 | Засцерагальнік 15А |
| F18 | Засцерагальнік 10А |
| F19 | Засцерагальнік 10А |
| F20 | Засцерагальнік 7,5А |
| F21 | Засцерагальнік 5А |
| F22 | Засцерагальнік 5А |
| F23 | — |
| F24 | — |
| F25 | — |
| F26 | Засцерагальнік 5А |
| F27 | Засцерагальнік 20А |
| F28 | Засцерагальнік 15А |
| F29 | Засцерагальнік 15А |
| F30 | Засцерагальнік 20A | |
| F31 | Засцерагальнік 15А | |
| F32 | Засцерагальнік 30А | |
| F33 | — | |
| F34 | — | |
| F35 | — | |
| F36 | Засцерагальнік 30А | |
| F37 | Засцерагальнік 5А | |
| F38 | Засцерагальнік 15А | |
| F39 | Засцерагальнік 10А | |
| Блок засцерагальнікаў і рэле маторнага адсека | ||
| F1.1 | Засцерагальнік 50А | 597-1 |
| F2.1 | Засцерагальнік 25А | 597-1 |
| F 1.2 | Засцерагальнік 40А | 597-2 |
| F1.3 | Засцерагальнік 60А | 597-3 |
| F2.3 | Засцерагальнік 60А | 597-3 |
| F1.5 | Засцерагальнік 80А | 597-4 |
| F2.4 | Засцерагальнік 25А | 1047 |
